
Les bâtiments de l’avenue de Béthusy 82-84 et 80 font partie d’un même ensemble recensé à l’ISOS. Leurs façades sont classées à l’inventaire des monuments historiques en note 3.


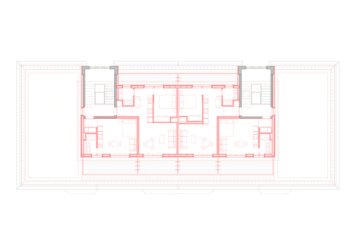
Le projet de surélévation permet de créer quatre appartements pour le premier et deux pour le second. A cause des gabarits imposés pour les attiques, les logements sont de petites tailles mais bénéficient de prolongements extérieurs généreux et de très beaux dégagements sur le lac et les Alpes.






Une progression de seuils permet de découvrir progressivement les espaces des appartements. Du palier de l’escalier, on entre dans un hall décaissé d’une marche, puis la cuisine forme une articulation qui offre une perspective sur l’espace de jour. Ce dispositif simple, qui passe du petit espace au grand paysage sans tout donner à voir d’un seul tenant, augmente la sensation d’espace du logement.




Un plancher de répartition en charpente bois est construit sur la dernière dalle. La surélévation est également réalisée en ossature bois isolée. La façade ventilée est faite de planches peintes dans la même teinte que le crépi. Les avants toits reprennent avec des chevrons les motifs en béton des frises existantes. L’expression architecturale joue ainsi sur une forme d’ambiguïté qui se situe entre le mimétisme et la vérité constructive. De loin, la façade de l’attique semble réalisée en crépi. De près, on distingue les planches composant la façade ventilée.



photos bâtiment et maquettes: David Gagnebin-de-Bons
photos bâtiment: Rémi Mauduit
Programme
Rénovation partielle et surélévation d'un immeuble de logements classé au patrimoine (note 3), à Béthusy
Maître de l'Ouvrage
La Foncière, Investissements Fonciers SA
Réalisation
2020-2024
Volume
7400
Type de mandat
Mandat direct
Lieu
Lausanne, VD
Mandataires
Ingeni SA
Coût des travaux
3650000
Collaborateurs
Christophe Pittet, Guillaume Aymon, Salomé Selva, Olalla López Cabaleiro, Maxime Matuszezak