Un restaurant est aménagé dans un ancien poste de police donnant sur la place du château.
De l'autre côté de la place, dans un petit local qui servait de salle de conférence, un bar occupe l'espace.
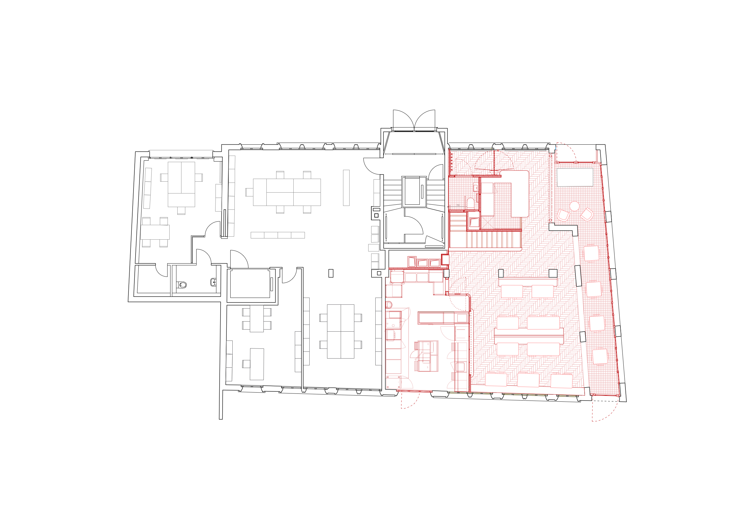
Les deux projets consistent à redéfinir les espaces intérieurs en plaçant judicieusement les volumes-meubles des bars et des espaces de service.
Les cloisons et les faux plafonds ont été déconstruits.

Le périmètre chauffé s’est agrandi pour intégrer la galerie extérieure à la salle


La cuisine professionnelle est séparée de la salle à manger par une paroi reprenant la matérialité du bar

Une partie des matériaux utilisés proviennent de réemploi (parquet) ou de stock inutilisés (carrelage, plinthe haute)
Les revêtements de la salle de conférence ont été démontés pour retrouver les matériaux d’origine

Le bar intègre une vitrine de présentation des mets. De la même manière que pour le restaurant, un matériaux (un carrelage vertical) unifie l’intervention dans l’espace.

Programme
Bar et restaurant
Maître de l'Ouvrage
Ville de Nyon
Réalisation
2024-2025
Type de mandat
Appel d'offre
Lieu
Place du château, Nyon
Collaborateurs
Marina Capelli